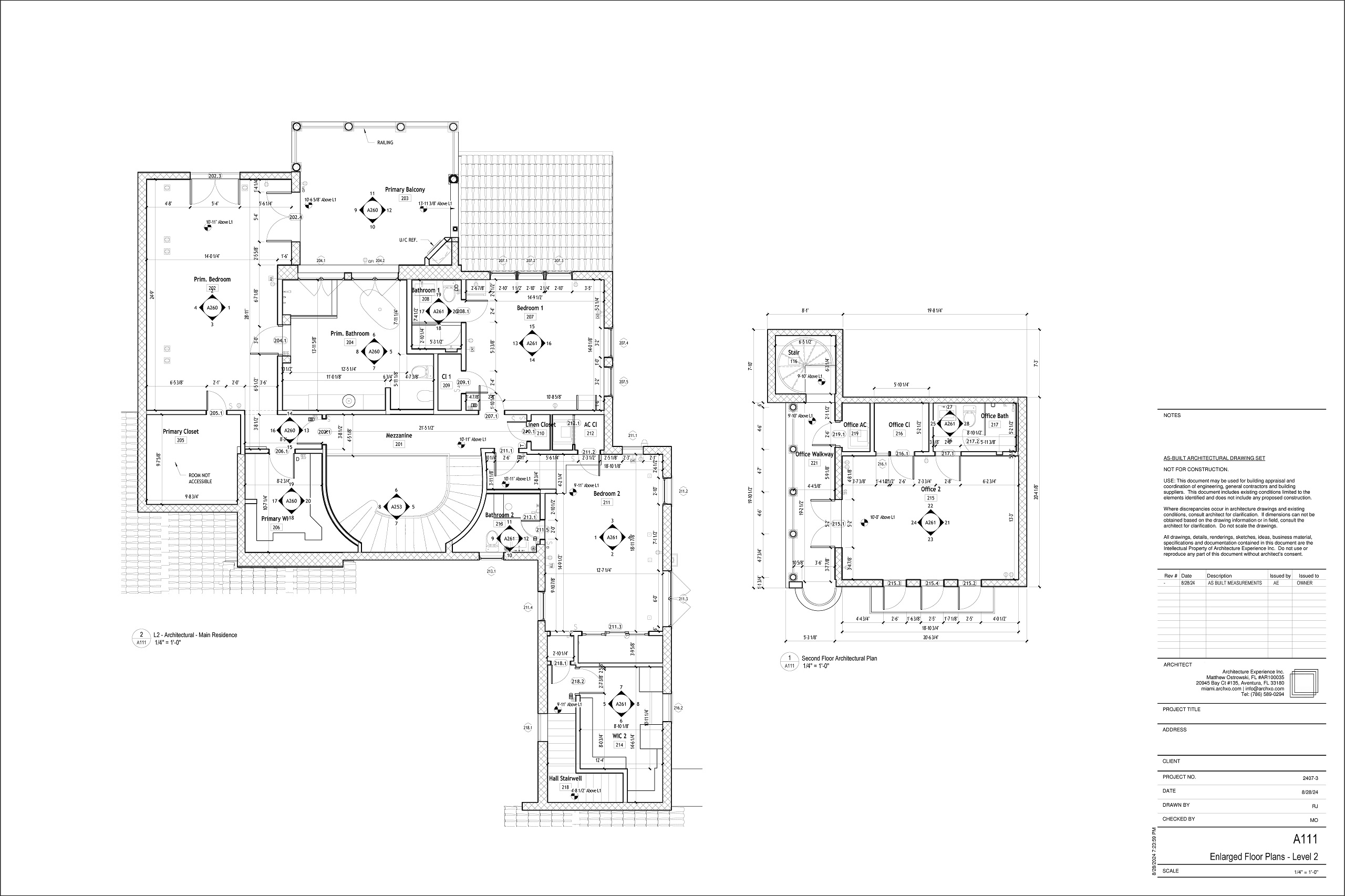
Our team measured and created as built drawings for this residence in Miami Beach, Florida using leading BIM modeling software and laser building scanning equipment.
The drawings include all exterior and interior spaces, building and sitework for use to design a second floor addition, interior major alteration, enclosed patios and balconies. The residence comprises approximately 7,800 square feet of conditioned and covered areas. The house, built in the early 20th century in the Spanish Mission Revival style, with multiple floor levels overlooking the bay, required precision scanning services to accurately complete the as built drawings.
Architecture Experience provided complete interior drawings to identify all of the systems, building elements and interior design features. These drawings greatly assisted the client and project team to efficiently determine the precise details of all existing elements and systems to address in the renovation.









