Transforming visions into reality, our as-built measured plan services offered meticulous precision and efficiency for our client’s combined unit project located at 9999 Collins Ave, Bal Harbour, Florida.
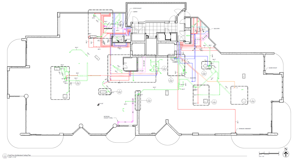
Focused on meeting preliminary design requirements, we carefully documented and measured the existing residence using high resolution imagery and LiDAR scanning, totaling 8,380 square feet, including unit interiors and balconies.
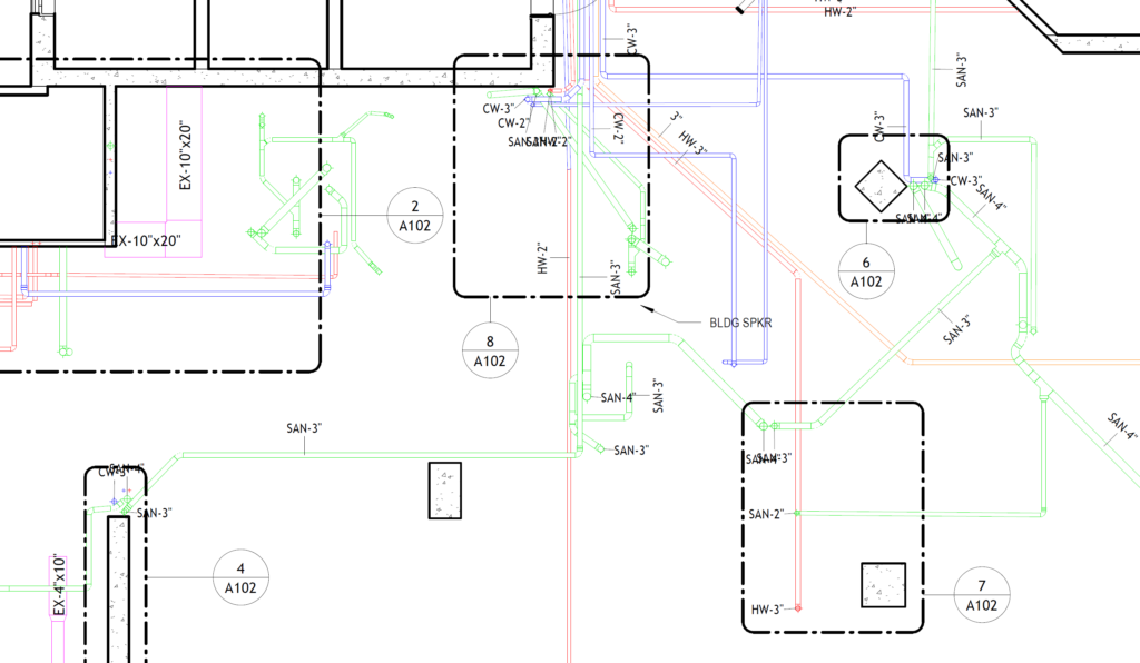
Our comprehensive package included detailed Floor Plans, Ceiling Plans, and precise layouts of Mechanical, Electrical, and Plumbing fixtures, all provided in BIM Model (IFC), PDF and CAD (DWG) formats.
Our expedited service ensured swift turnaround, with site visits conducted promptly to complete the work, coupled with responsive correspondence to address any queries or adjustments.
Additionally, our services encompassed accurate 3D modeled interior views to provide our client with a comprehensive understanding of the space.
We delivered our standard professional grade accuracy and efficiency, with measurements completed within just a few weeks.
We also provided field markup services to indicate the proposed room layouts including wall framing, door swings, countertops, and cabinetry using laser leveled floor tape marks for review of the design at a realistic scale.
Accelerate your project with our premium as-built measured plan services today.





